Продается коммерческое помещение,
Цена продажи
125000000 руб.
Арт. 75121203 Продается действующее кафе в историческом центре города!
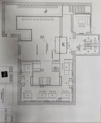
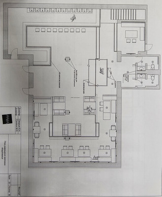
ЗЕМЛЯ В СОБСТВЕННОСТИ.ЗДАНИЕ В СОБСТВЕННОСТИ. Продается здание 617 м2, расположенное на земельном участке 10,5 соток. Информация о кафе: общая площадь здания - 617 м2; основной зал на первом этаже - 200 м2, полностью укомплектован мебелью и техникой, действующее кафе; второй зал в цокольном этаже - караоке-бар, 220 м2, незакончен ремонт (закуплены материалы); план караоке-бара прилагается; летняя площадка 420 м2, оборудованы беседки и зонтики, укомплектованные мебелью из ротанга; летняя площадка на крыше 270 м2, с выделенной зоной бара; кухня полностью укомплектована (лавовый гриль, промышленная газовая плита, мощные вытяжки, несколько холодильников и морозильных камер, несколько моек на большой объем посуды, все необходимое для полноценного функционирования кухни); компоновка кухни прилагается; электричество 3 фазы, 70 кВт; отопление автономное (газовый котел); канализация центральная городская; вода городская с достаточным напором, есть резервные баки для воды; год постройки здания - 2004. Земельный участок: земля в собственности; площадь участка 10,5 сотки; участок угловой, с трех сторон подъездные пути. Информация о местоположении: исторический и деловой центр города; парк им. Горького и дом культуры через дорогу; драм. театр им. Чехова в 2 минутах ходьбы; историко-краеведческий музей; кафе находится в данной локации более 20 лет, что обеспечило хороший трафик людей и его рентабельность. О бизнесе: кафе полностью оборудовано до ложек и вилок; имеется лицензия на алкоголь; есть разрешение на строительство дополнительной площади 639 м2, выданное администрацией города Таганрога (фото проекта прилагается); проект расширения так же имеется со всей спецификацией и указанием стройматериалов; после расширения второй этаж идеально подойдет...#8738705# Общая стоимость: 125000000 руб./месяц Этаж/этажность: 1/1 Агентам: Не звонить |
2162832 15 Апреля 2025 просмотров 24 |
Добавить комментарий
Похожие объявления











































